Dom pod Toruniem
Piętrowy dom dla dużej rodziny w stylu włoskiej willi z ogrodem zimowym
Dane Ogólne
Adres: osiedle domów w Różankowie pod Toruniem
Inwestor: prywatny
Powierzchnia użytkowa: 390 m2
Data: 2013,
Architektura: A2 ARCHITEKCI
Zadanie Projektowe
Zadanie Projektowe
Naszym zadaniem było zaprojektowanie piętrowego domu dla dużej rodziny w stylu włoskiej willi z ogrodem zimowym. Inwestor chciał również stylem nawiązać do innych domów planowanych na osiedlu.
Realizacja Projektowa
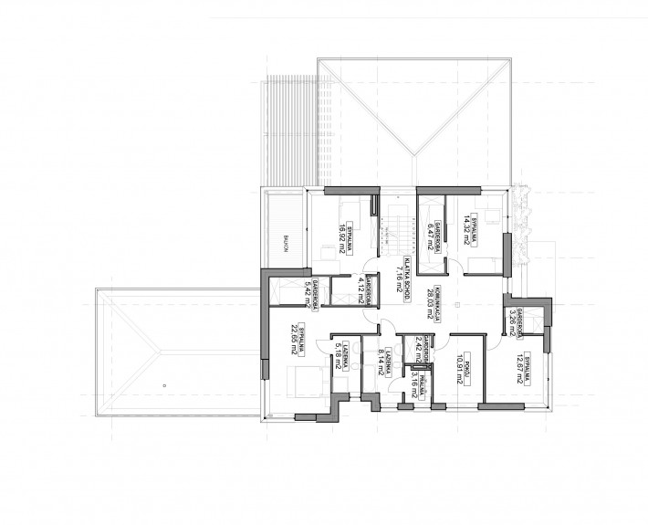
Realizacja Projektowa
Zaproponowano budynek zwarty ale z dużą ilością przeszkleń. Ściany ogrodu zimowego oraz przeszklenie od strony ogrodu zaplanowano tak aby umożliwić ich całkowite rozsunięcie i pełną łączność z ogrodem. Oddzieleniem jest tylko przesuwna żaluzja. Na piętrze zaplanowano garderoby dla wszystkich pokojów.













