Centrum Chrześcijańskie – Gdańsk Wrzeszcz
Wizualizacja z koncepcją
Nowy budynek wielofunkcyjny zawierający między innymi audytoria, biura sale lekcyjne kawiarnię i mieszkania
Dane Ogólne
Adres: Gdańsk Wrzeszcz, ul.Leczkowa 27
Inwestor: Kościół Crześcijan Baptystów Rzeczypospolitej Polskiej, II Zbór w Gdańsku>
Data: 2014
Architektura: A2 ARCHITEKCI
Zadanie Projektowe
Zadanie Projektowe
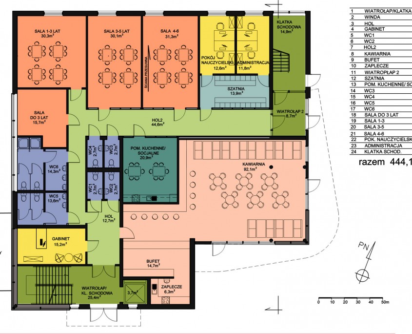
Naszym zadaniem było uzgodnienie programu funkcjonalno użytkowego dla budynku wielofunkcyjnego łączącego funkcję audytorium szkoły przedszkola, biur, kawiarni i mieszkań. Budynek powinien maksymalnie wykorzystywać istniejącą działkę i być jednoczesne wizytówka dobrze rozwijającej się lokalnej społeczności wierzących,
Realizacja Projektowa
Realizacja Projektowa
Wielokrotne spotkania i burzliwe dyskusje doprowadziły do uzgodnienia funkcji i jej wzajemnej relacji i zaakceptowania formy architektonicznej. Powstał projekt z garażem podziemnym w którym funkcje są zupełnie niezależne i nie kolidujące ze sobą. Sala audytoryjna posiada ścianę przesuwną umożliwiająca powiększenie jej na większe spotkania. Mieszkania dla studentów na najwyższej kondygnacji posiadają dostęp do tarasu.







































