Budynek Biurowo Magazynowy
Toruń
Dane Ogólne
Adres: ul. Towarowa, Toruń
Inwestor: prywatny
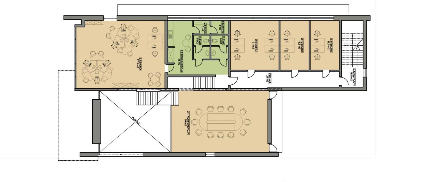
Powierzchnia użytkowa: 680 m2
Data: 2017, /pfu i koncepcja/
Architektura: A2 Architekci
Zadanie Projektowe
Zadanie Projektowe
Otrzymaliśmy zlecenie na zaprojektowanie budynku łączącego dwie funkcje – biurową i magazynową. Budynek ma być nowoczesny podnoszący prestiż firmy a jednocześnie dobrze wpisać się w sąsiedztwo budynków usługowych ul Towarowej. Dodatkowo należało przewidzieć możliwość przyszłej rozbudowy oraz możliwość oddzielenia części biur na wynajem.
Realizacja Projektowa
Realizacja Projektowa
Zaprojektowano budynek o tradycyjnej konstrukcji wykończony systemowymi elewacjami wentylowanymi. Dwie bryły o różnych wysokościach „zszyto” jednobiegową klatką schodową, prowadzącą do biur na piętrze. Reprezentacyjna część wejściowa otwarta na dwie kondygnacje połączona jest z antresolą, biurami i dwoma pomieszczeniami magazynowymi umieszczonymi w tylnej części budynku.






























