Honda SMH Toruń
Drugi etap przebudowy istniejącego salonu samochodowego dla SMH Honda w Toruniu
Dane Ogólne
Adres: ul. Żółkiewskiego, Toruń
Inwestor: SMH Honda Toruń
Powierzchnia użytkowa: 200 m2
Data: 2010, /koncepcja/
Architektura: A2 Architekci Grupa Projektowa
Zadanie Projektowe
Zadanie Projektowe
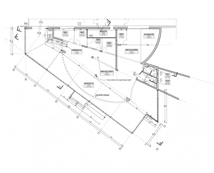
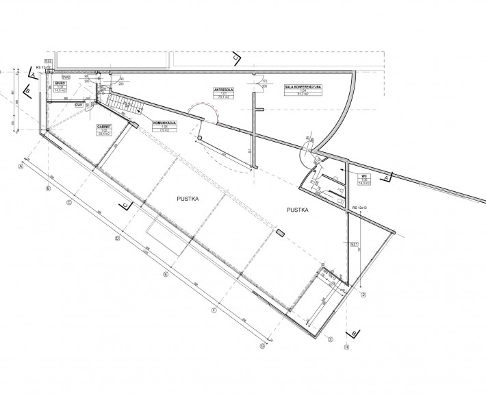
Salon samochodowy znajduję się na śródmiejskiej działce, przy ruchliwej ulicy Żółkiewskiego. Projektowana rozbudowa obejmuję powiększenie części ekspozycyjnej w kierunku ulicy oraz przebudowę pomieszczeń biurowych na piętrze..
Realizacja Projektowa
Realizacja Projektowa
Główna zmianą drugiego etapu było ścisłe zastosowanie się wizerunkowo do aktualnych wytycznych i standardów dla wszystkich nowych salonów Hondy. W przebudowie starano się wykorzystać jak najbardziej kreatywnie stan istniejący, jednocześnie nadać Salonowi współczesny charakter.

















